



| 所在地 アクセス |
賃料 管理費等 |
敷金(保証金) 礼金(敷引) |
物件種別 築年月 リニューアル年 |
|---|---|---|---|
西宮市甲子園口4丁目21-21 |
相談 | 相談 | 住居 H3.3 |
西宮市甲子園口4丁目21-21 甲子園口駅から徒歩11分
相談
相談
住居/H3.3/
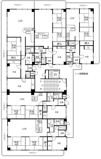
| 構 造 | 鉄筋コンクリート造7階 | 保険関係 | あり |
|---|---|---|---|
| 駐車場 | あり | 駐輪場 | あり |
| 契約形態 | 貸主 | 入居可能日 | 相談 |
| 設備・特徴等 | 共 通 | ||
鉄筋コンクリート造7階
あり
あり
あり
貸主
相談