



| 所在地 アクセス |
賃料 管理費等 |
敷金(保証金) 礼金(敷引) |
物件種別 築年月 リニューアル年 |
|---|---|---|---|
| 大阪市淀川区西中島1丁目13番6号 西中島南方駅から徒歩1分 |
相談 | 相談 | オフィスビル H4.2.23 H22年完成 |
大阪市淀川区西中島1丁目13番6号 西中島南方駅から徒歩1分
相談
相談
オフィスビル/H4.2.23/H22年完成
| 構 造 | S造(鉄骨構造) | 保険関係 | あり |
|---|---|---|---|
| 駐車場 | 一時貸し近隣確保 | 駐輪場 | なし |
| 契約形態 | 仲介 | 入居可能日 | 相談 |
| 設備・特徴等 | 共 通 | ||
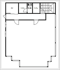
| 5F事務所A | |||
| 5Fワンフロアー | |||
S造(鉄骨造)
あり
一時貸し近隣確保
なし
仲介
相談